SCHÖNE, HELLE GEWERBEFLÄCHE MIT BARRIEREFREIEM ZUGANG IM ZENTRUM VON QUIERSCHIED - SOFORT FREI
- ÜBERARBEITEN -
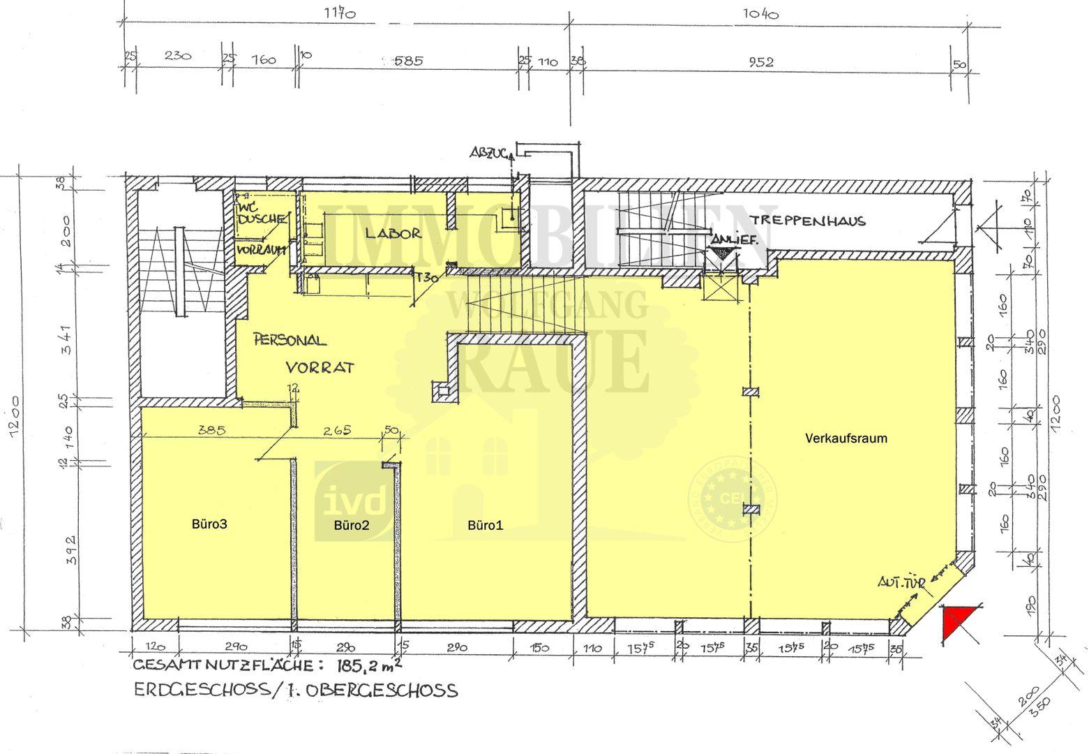
AUFTEILUNG:
ERDGESCHOSS:
großer, heller Verkaufsraum mit schöner Theke, 1 Raum hinter dem Verkaufsraum.
OBERGESCHOSS:
offener Personalküche, 3 Büroräume, 1 Labor, Duschbad.
7 Schaufenster mit je 1,45 Meter, Markise (Sonnenschutz).
Im Jahr 2000 wurde diese schöne Gewerbeeinheit komplett renoviert.
- Klima im Verkaufsraum
- 7 Schaufenster mit je 1,45 Meter, Markise (Sonnenschutz).
- Barrierefreier Zugang
Diese Gewerbeeinheit liegt in Zentrum von 66287 Quierschied in einem markanten Gebäude.
Die Gemeinde Quierschied liegt in verkehrsgünstiger Lage 12 km nördlich der Landeshauptstadt Saarbrücken. Über die Bundesautobahnen A1, A8 und A623 ist Quierschied aus allen Richtungen schnell zu erreichen. Auch die Verbindungen mit öffentlichen Verkehrsmitteln von und nach Quierschied sind gut.
NEBENKOSTEN:
Die Kosten für Heizung, Strom und Telefon/Internet werden direkt mit dem Energieversorger abgerechnet
Wasser, Müll, Grundsteuer, allg. Strom anteilig an den Vermieter.
Vorgabe des Vermieters:
- keine negativen Schufaeinträge
- Mindestmietdauer 12 Monate
UMSATZSTEUEROPTION.
Auf die Nettokaltmiete sowie die Nebenkosten werden 19 % Mehrsteuer berechnet.